Woodyates Road, London, SE12 9JJ

£650,000
  • Ref: LEB200001
  • Type: Semi-Detached House
  • Availability: Sold STC
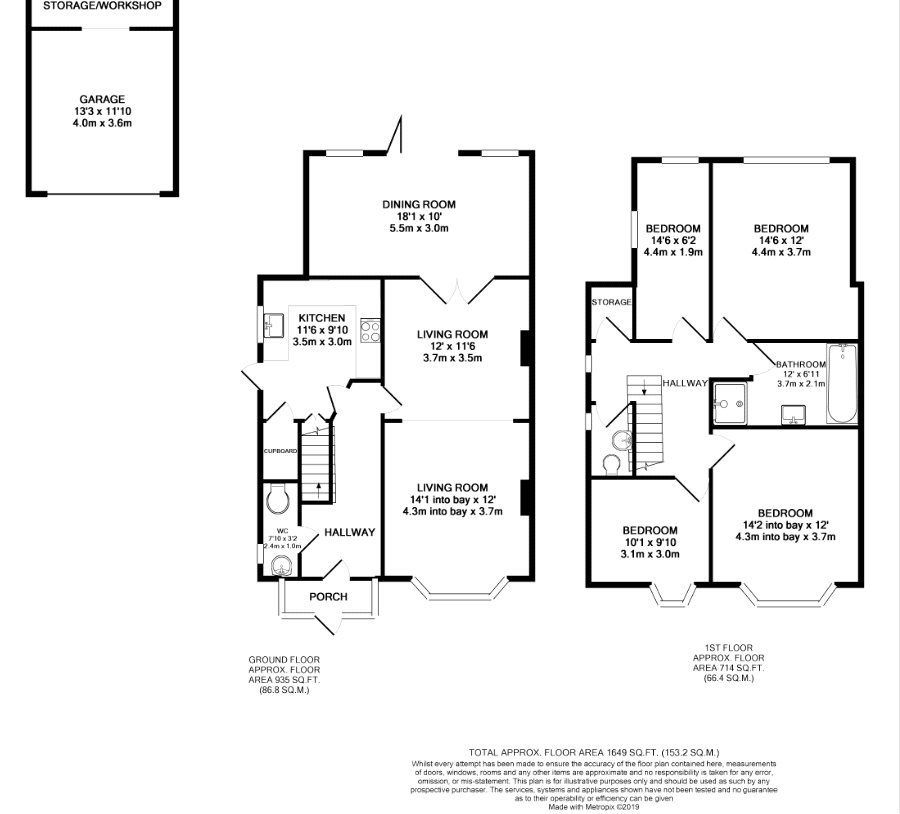
  • Bedrooms: 4
  • Bathrooms: 3
  • Reception Rooms: 2
  • Parking: Double Garage
  • Make Enquiry
  • Floor Plan
  • View EPC

Property Summary

Spread over approximately 1,600 square foot this large 4 double bedroom family home is a must see for anyone who needs space,

This home hasn't been sold since 1936 and lived in by the same family for 84 years. The property has been well maintained and modernized throughout, with double glazing, modern boiler and finished to a high standard.

Offered with a double story rear extension making this family home larger than most with further potential to extend in to the loft or to the side.

Benefiting from a large side access big enough for your car or van to drive down. The side access leads through to a double garage and workshop for all your mechanical and storage needs.

The garden is well over 100 foot as well as the front garden having enough room for at least 2 family cars.

Commuting to London is convenient with Lee Mainline Station located at the end of Woodyates Road. Lee station will get you to London Bridge in approximately 10 minutes and then on to either Cannon Street or Charing Cross. Also at the end of the road you have many local conveniences such as a Co-op, Restaurants and Pubs.