Pragnell Road, Lee, Lewisham, London, SE12 0LF
£600,000
Property Summary
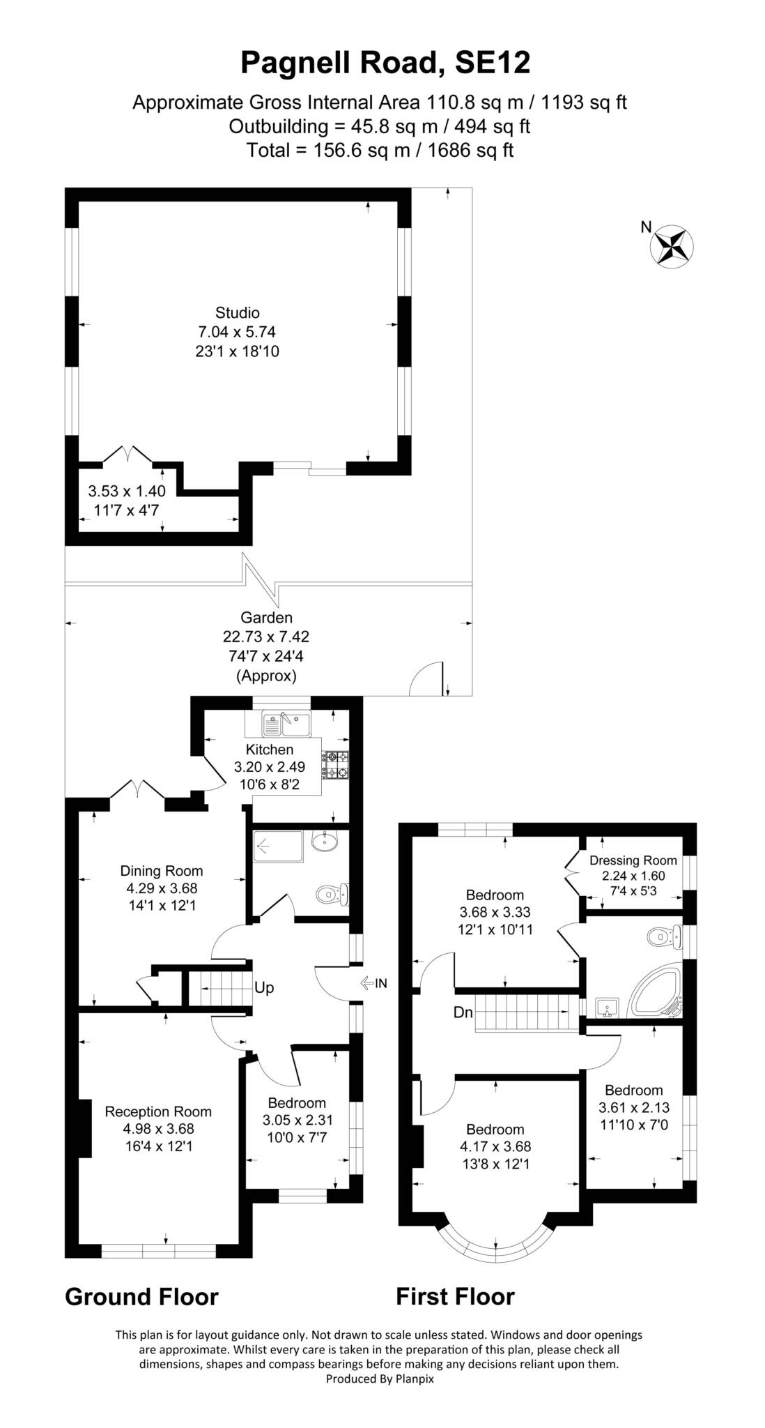
FOUR bedroom Semi-Detached Spread over almost 1,700 square foot with a Large SEPARATE STUIDO.
Nestled opposite the highly regarded Coopers Lane Primary School and just a pleasant 10-minute stroll from Grove Park Mainline Station, this impressive four-bedroom extended semi-detached house presents a fantastic opportunity for families seeking space, convenience, and versatility.
Located approximately a 10 minute walk from Grove Park Station this property is fantastically positioned for an easy commute to town. Grove Park Station can connect you to London Bridge in as little as 12 minutes. Grove Park is also a hive of activity with many bus routes taking you far and wide including the new Super Loop SL4 connecting you directly to Canary Wharf. You will also find plenty of shops for your convenience, stunning green chain walks, multiple parks, Bannatyne's Heath Club at the end of the road as well as the fantastic Coopers Lane school situated opposite.
Upon entering, you'll be greeted by a welcoming ambiance that flows throughout the property. The extended layout offers generous living accommodation, perfect for modern family life. The well-proportioned rooms provide ample space for relaxation and entertaining.
The property boasts four bedrooms, providing flexibility for growing families or those needing guest rooms or home offices. The principal bedroom benefits from a desirable ensuite bathroom, offering a private sanctuary.
A significant feature of this wonderful home is the separate, large self-contained studio situated at the rear of the garden. This fantastic space is fully electric, double glazed, and insulated, making it ideal for a variety of uses such as a home office, gym, hobby room, or even potential guest accommodation.
Externally, the property benefits from a driveway with parking space for at least two cars, a valuable asset in this sought-after location. The rear garden offers a private outdoor space to enjoy.
Combining a prime location with spacious living and the added benefit of a self-contained studio, this property is a must-see. Don't miss the chance to make this exceptional house your new home.
Nestled opposite the highly regarded Coopers Lane Primary School and just a pleasant 10-minute stroll from Grove Park Mainline Station, this impressive four-bedroom extended semi-detached house presents a fantastic opportunity for families seeking space, convenience, and versatility.
Located approximately a 10 minute walk from Grove Park Station this property is fantastically positioned for an easy commute to town. Grove Park Station can connect you to London Bridge in as little as 12 minutes. Grove Park is also a hive of activity with many bus routes taking you far and wide including the new Super Loop SL4 connecting you directly to Canary Wharf. You will also find plenty of shops for your convenience, stunning green chain walks, multiple parks, Bannatyne's Heath Club at the end of the road as well as the fantastic Coopers Lane school situated opposite.
Upon entering, you'll be greeted by a welcoming ambiance that flows throughout the property. The extended layout offers generous living accommodation, perfect for modern family life. The well-proportioned rooms provide ample space for relaxation and entertaining.
The property boasts four bedrooms, providing flexibility for growing families or those needing guest rooms or home offices. The principal bedroom benefits from a desirable ensuite bathroom, offering a private sanctuary.
A significant feature of this wonderful home is the separate, large self-contained studio situated at the rear of the garden. This fantastic space is fully electric, double glazed, and insulated, making it ideal for a variety of uses such as a home office, gym, hobby room, or even potential guest accommodation.
Externally, the property benefits from a driveway with parking space for at least two cars, a valuable asset in this sought-after location. The rear garden offers a private outdoor space to enjoy.
Combining a prime location with spacious living and the added benefit of a self-contained studio, this property is a must-see. Don't miss the chance to make this exceptional house your new home.


































